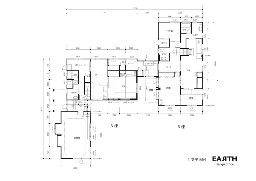
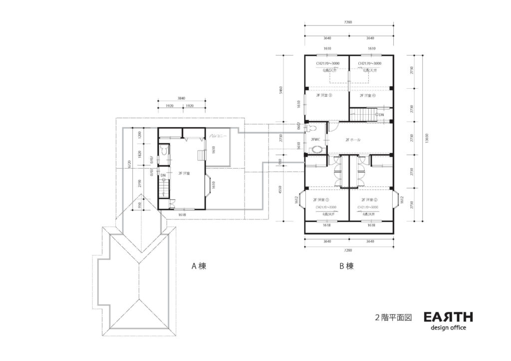
現況図

| 工事名 | 「G」邸改装工事 |
| 住所 | 千葉市緑区あすみが丘6-9-3 |
既存建物設計図







部屋別工事内訳
Table Of Contents
- 応接室(Guest)
- 食堂(Dining)
- 居間(Family)
- ヌック(Nook)
- 台所(Kitchen)
- 1F主寝室 (BR#1)
- 1F主寝室バスルーム
- ガレージ(Garage)
- ランドリー(Laundry)
- 玄関・ホール (Entrance hall)
- 1F ローカ (1F Hall way)
- 1F ローカ トイレ (1F Hall Toilet)
- 階段室 (Stairs)
- 2F ローカ + ホール (2F Hall)
- 2Fパブリックバスルーム
- 2F 主寝室 (M.BR)
- バルコニー (M.BR Balcony)
- 2F主寝室 バスルーム
- BedRoom3 (BR#3)
- バルコニー大 (Balcony)
- BedRoom4 (BR#4)
- BedRoom5 (BR#5)
応接室(Guest)







- 【内装】 壁:クロス貼り替え※要足場 床:無し 天井:無し
- 【塗装】 木部:ニス7分ツヤ 天井モールディング:無し
- 【補修①】 窓枠劣化:塗装
- 【補修②】 フレンチドア木部劣化:パテ+塗装
- 【エアコン新設2台】 日立 RAS-G630L2 (20畳用)
食堂(Dining)





- 【内装】 壁:クロス貼り替え※要足場 床:カーペット貼り替え 天井:無し
- 【塗装】 木部:ニス7分ツヤ 天井モールディング:無し
- 【補修①】 引き戸:取り外し調整
- 【エアコン新設1台】 日立 RAS-G710L2(23畳用)
居間(Family)






- 【内装】 壁:クロス貼り替え※要足場 床:フローリングコート 天井:無し
- 【塗装】 木部:ニス7分ツヤ 天井モールディング:無し
- 【補修①】 床:フローリングリペア2帖
- 【エアコン交換】 日立 RAS-G630L2 (20畳用)
ヌック(Nook)




- 【内装】 壁:クロス貼り替え 床:フローリングコート 天井:無し
- 【塗装】 木部:ニス7分ツヤ 天井モールディング:無し
- 【塗装】 フローリング劣化箇所着色補修 床面積の15% (4.75×3.6×0.15=2.5㎡)
- 【水道工事】 水洗金具交換・シンク塗装
- 【補修】 カウンター背面: 折れ戸 開閉不良のため取り外し調整
- 【エアコン交換】 日立 RAS-G630L2 (20畳用)
台所(Kitchen)









- 【内装】 壁:クロス貼り替え 床:フローリングコート 天井:無し
- 【塗装】 木部:ニス7分ツヤ 天井モールディング:無し ドア:小口塗装
- 【塗装】 フローリング劣化箇所着色補修 床面積の25% (4.75×3.9×0.25=4.7㎡)
- 【水道工事】 アイランド:水洗金具交換 メイン:水洗金具交換
- 【補修①】キャビネット:キャビネット建付点検調整
- 【補修②】レンジフード:フィルター新設ベラスコート 伸縮式w900
- 【補修③】コンロ交換 RHS31W31E14RCSTW-13A アローズホワイト DELICIA /リンナイ
1F主寝室 (BR#1)







- 【内装】 壁:クロス貼り替えCH2650 床:カーペット張替え 天井:無し ※ボード亀裂補修
- 【塗装】 木部:ニス7分ツヤ 天井モールディング:無し. 掃き出し窓:靴ずり塗装 窓枠:塗装 寝室-1FBR:靴ずり塗装
- 【補修①】 網戸張替え:掃き出し窓
1F主寝室バスルーム










- 【内装】 壁:クロス貼り替え 床:なし 天井:無し
- 【塗装】 木部:ニス7分ツヤ 天井モールディング:無し 物入扉:OS + クリア塗装 浴室天井吹き付け塗装
- 【水道工事】 洗面:水洗金具・ポップアップ排水栓 交換 浴室:シャワー水栓交換
- 【補修①】 洗面室:鏡腐蝕 Hジョイナー にてカバーリング設
- 【補修②】 浴室:ドアアクリルパネル交換・排水蓋腐蝕のリペア・鏡交換1000×400・タオルバー交換
ガレージ(Garage)





- 【内装】 なし
- 【塗装】 壁・天井:トップコート吹き付け 木棚:OSC塗装
- 【電気工事】 200V電源新設+EV用コンセント
- 【高圧洗浄】 床面:高圧洗浄
ランドリー(Laundry)





- 【内装】 壁:クロス貼替え 天井:なし 床:CF張替え
玄関・ホール (Entrance hall)








- 【内装】 壁:クロス貼替え 天井:なし 床:なし
- 【塗装】 木部:ニス7分ツヤ 天井モールディング:無し
1F ローカ (1F Hall way)

- 【内装】 壁:クロス貼替え
- 天井:クロス貼替え 床:フローリングコート
- 【塗装】 木部:ニス7分ツヤ 天井モールディング:無し
1F ローカ トイレ (1F Hall Toilet)


- 【内装】 壁:クロス貼替え FE-74507 天井:なし 床:なし
- 【水道工事】 手洗い器:水洗金具・ポップアップ排水栓 交換
階段室 (Stairs)
2F ローカ + ホール (2F Hall)









- 【内装】 壁:クロス貼替え 天井:クロス貼替え 床:フローリングコート
- 【塗装】 木部:ニス7分ツヤ 天井モールディング:無し
2Fパブリックバスルーム



- 【塗装】 木部:ニス7分ツヤ 天井モールディング:無し
- ※洗面器及び水栓金具のみの交換は不可(廃盤・代替え品無し)カウンターごと交換であれば可能。
2F 主寝室 (M.BR)






- 【内装】 壁:クロス貼替え 天井:なし 床:フローリングコート
- 【塗装】 木部:ニス7分ツヤ 天井モールディング:無し
- 【補修①】 床フローリングリペア(掃き出し付近)
- 【補修②】 観音ドア建て付け不良調整
- 【補修③】 トステムプリーツ網戸交換工事 900×2100サイズ 2本
- 【補修④】 バルコニードアノブ不良 交換 MIWA-GAT ゴールド
ウォークインクローゼット
- 【内装】 壁:クロス貼替え 天井:なし 床:フローリングコート
- 【塗装塗装】 木部:ニス7分ツヤ 天井:エマルジョンペイント
バルコニー (M.BR Balcony)






- 【塗装】
- 床:高圧洗浄 1.8×4.6=8.28㎡
- 壁:高圧洗浄 8.2×1.2=9.84㎡
- 笠木:高圧洗浄 1×5=5㎡
- 壁塗装:8.2×1.2=9.84㎡
- 笠木塗装:1×5=5㎡
- エキスパンション目地打直し 1.5m
- 側溝ウレタン塗布防水 5m
2F主寝室 バスルーム








- 【内装】 壁:クロス貼り替え 床:なし 天井:無し
- 【塗装】 木部:ニス7分ツヤ 天井モールディング:無し 物入扉:OS + クリア塗装
- 【水道工事】 洗面:水洗金具・ポップアップ排水栓 交換
- 【補修①】 洗面室:鏡Hジョイナー 設置
- 【補修②】 浴室:ドアゴムシール交換2m
- 【補修③】 サウナ室:カビ除菌洗浄
BedRoom3 (BR#3)




- 【内装】 壁:クロス貼替え 天井:なし 床:フローリングコート CL:クロス貼替え
- 【塗装】 木部:ニス7分ツヤ 天井モールディング:無し 窓枠:補修塗装
- 【補修①】 床フローリングリペア(掃き出し付近)
バルコニー大 (Balcony)


- 床:高圧洗浄 3.6×4+3.9×2.6=24.54㎡壁:高圧洗浄 8.2×1.2=9.84㎡
- 笠木:高圧洗浄 1×18=18㎡
- 壁塗装:18×1.2=21.6㎡
- 笠木塗装:1×18=18㎡
- エキスパンション目地打直し 4+4+7.5=15.5m
- 側溝ウレタン塗布防水 8m
BedRoom4 (BR#4)








- 【内装】 壁:クロス貼替え 天井:なし 床:フローリングコート CL:クロス貼替え
- 【塗装】 木部:ニス7分ツヤ 天井モールディング:無し 窓枠:補修塗装
- 【補修①】 床フローリングリペア(掃き出し付近)
BedRoom5 (BR#5)





- 【内装】 壁:クロス貼替え 天井:なし 床:フローリングコート CL:クロス貼替え
- 【塗装】 木部:ニス7分ツヤ 天井モールディング:無し 窓枠:補修塗装







